UN TDG (Rev.7) Test H.1,
통칭 '미국 SADT 시험(United States SADT test)'은 자기반응성 물질이나 유기과산화물이 운송 중 특정 온도 조건에서 스스로 열분해를 시작하여 위험한 상황을 초래할 수 있는 최저 온도
즉 자기 가속 분해 온도(SADT, Self-Accelerating Decomposition Temperature)를 결정하기 위한 시험 규격입니다.
이 시험의 가장 큰 특징은 실험실 규모의 소량 시료가 아닌, 실제 운송에 사용되는 상업용 포장물을 그대로 사용하여 시험한다는 점입니다. 이를 통해 실제 운송 조건과 매우 유사한 환경에서 물질의 열적 안정성을 평가할 수 있습니다.




시험 장비
미국 SADT 시험에 사용되는 주요 장비는 다음과 같습니다.
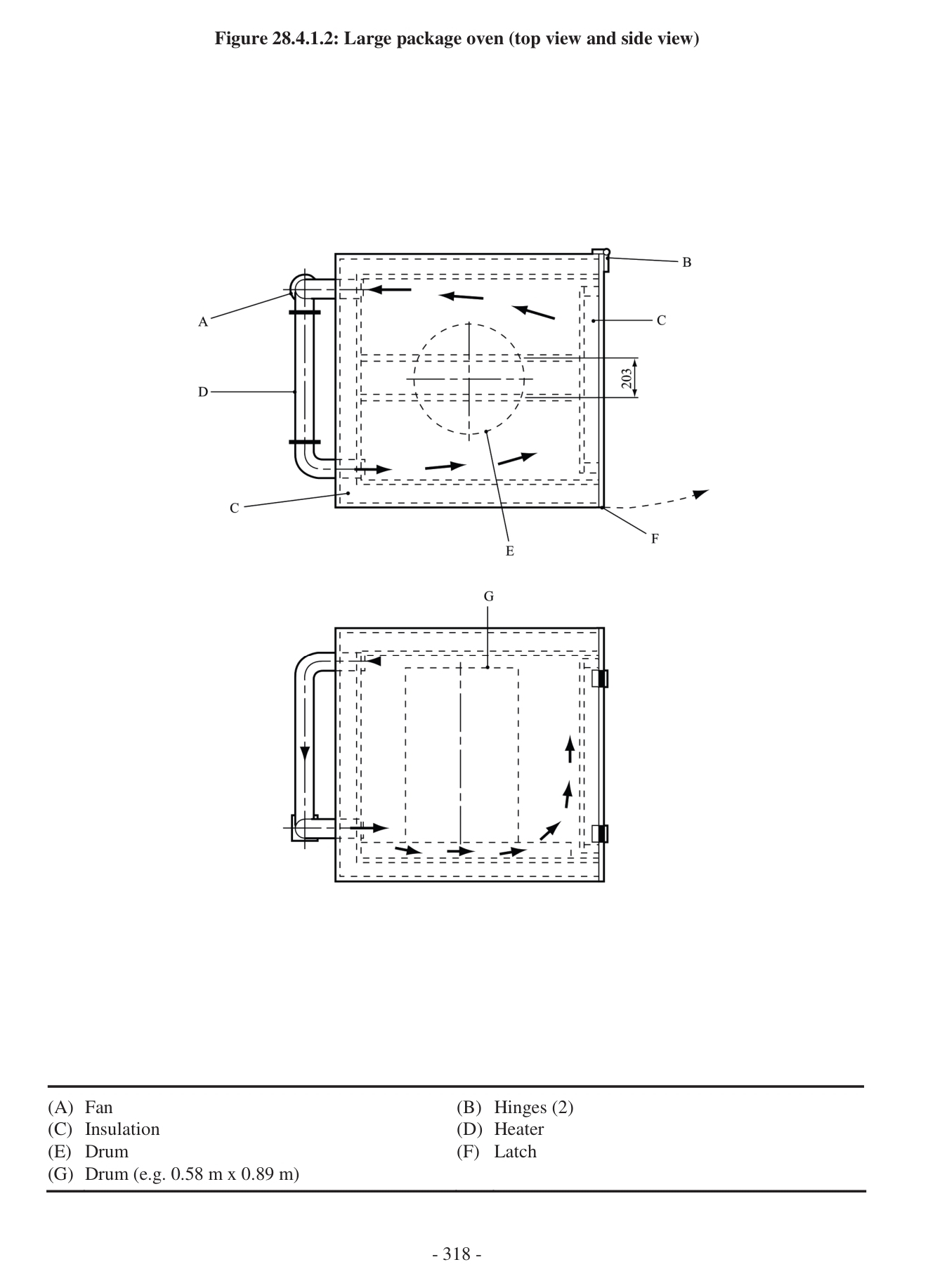
* 온도 조절 시험 챔버 (오븐): 시험할 포장물을 내부에 넣고 설정된 온도를 일정하게 유지할 수 있는 충분한 크기의 오븐이 필요합니다. 챔버 내부는 강제 공기 순환 방식을 통해 온도가 균일하게 분포(±1 ~ 2°C 편차 이내)되어야 합니다. 최대 220리터(55갤런) 용량의 포장물까지 시험할 수 있어야 합니다.
* 온도 센서 (열전대): 포장물 내부의 시료 중심 온도와 챔버 내부의 온도를 정밀하게 측정하기 위해 Pt100과 같은 정밀 온도 센서가 사용됩니다. 여러 개의 센서를 사용하여 포장물 내외부의 온도 변화를 지속적으로 모니터링합니다.
* 데이터 기록 장치: 시간에 따른 온도 변화를 연속적으로 기록하고 저장하는 장치입니다. 시험 기간 동안의 모든 온도 데이터를 분석하여 SADT를 판정하는 데 사용됩니다.
* 안전 장치: 시험 중 시료가 급격한 분해를 일으킬 경우에 대비하여, 챔버의 과열을 방지하고 자동으로 냉각시키는 비상 냉각 시스템 등의 안전 장치가 필수적입니다.
측정 방법
시험은 다음과 같은 절차로 진행됩니다.
* 준비: 실제 운송에 사용될 포장물에 시험할 물질을 채우고, 포장물의 중심부에 온도 센서를 설치합니다. 이 포장물을 온도 조절 시험 챔버 중앙에 놓습니다.
* 온도 설정 및 유지: 챔버의 온도를 예상되는 SADT보다 약간 낮은 온도로 설정하고, 그 온도를 일정하게 유지합니다.
* 온도 모니터링: 포장물 내부 시료의 온도와 챔버 내부 온도를 지속적으로 측정하고 기록합니다. 시험은 통상 7일간 진행됩니다.
* SADT 판정: 시험 기간 동안 포장물 내부 시료의 온도가 챔버의 설정 온도보다 6°C 이상 초과하는 현상이 관찰되면, 자기 가속 분해가 시작된 것으로 간주합니다.
* 반복 시험: 만약 자기 가속 분해가 일어나지 않으면, 챔버의 설정 온도를 5°C씩 높여가며 동일한 시험을 반복합니다. 자기 가속 분해가 관찰된 가장 낮은 챔버 설정 온도를 해당 물질의 SADT로 결정합니다.
이 시험법은 실제 포장물을 사용하기 때문에 비용과 시간이 많이 소요될 수 있지만, 가장 정확하고 신뢰성 있는 SADT 값을 얻을 수 있는 방법으로 인정받고 있습니다.
'하나씩 공부' 카테고리의 다른 글
| LTV, DTI, DSR: 2025년 기준 한국의 부동산 대출 규제 알아보기 (1) | 2025.07.27 |
|---|---|
| 화학 분석에서의 농축: 기초부터 심화까지 (3) | 2025.07.26 |
| HPLC 및 LC-MS 버퍼 선택 가이드 상세 정리 (5) | 2025.06.27 |
| [애드센스 세션 관련 측정항목 지원 종료]에 대해 AI한테 물어보기 (1) | 2025.02.28 |
| 논에 하얀색 물체 뭘까요? (1) | 2024.09.13 |